Departamento premium, 3 ambientes, 126 m², 3 cocheras, full amenities.
Departamento premium
📍 Las Cañitas | Jorge Newbery 1600, Piso 10 • 3 años de antigüedad • Impecable ✨
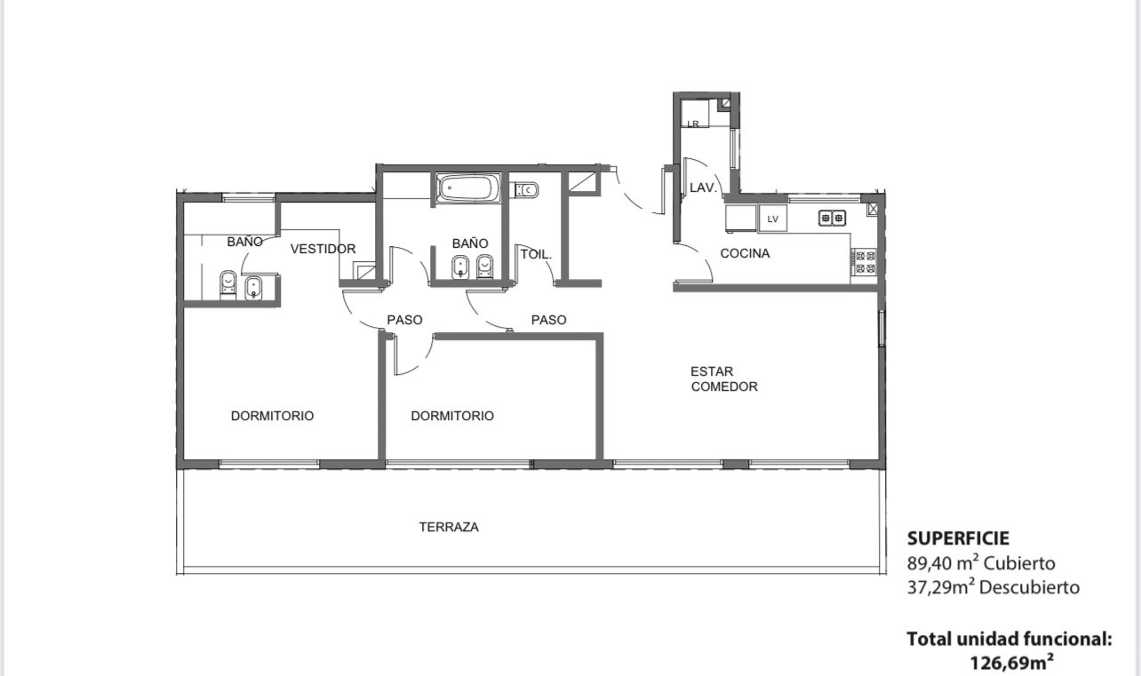
🔹 El depto: Semipiso de 127m² totales con balcón corrido XL (37m²). Living con ventanales de piso a techo y suite con vestidor.
🔹 El diferencial: ¡3 cocheras propias! (2 cubiertas). 🚗🚗🚗
🔹 Amenities: Seguridad 24hs, Piscina, Parrilla, Gym y SUM.
💰 Valor: USD 490.000
Descripción de la propiedad
• Expensas: Aproximadamente $1.300.000, incluyendo tres cocheras.
• Confort: Aire acondicionado central individual frío/calor con control de temperatura en cada ambiente. Calefacción por loza radiante, también con regulación independiente.
• Edificio: Torre de doble frente, de 10 pisos, con 4 unidades por planta.
• Unidad: Ubicada en el piso 10, única en su nivel y con acceso directo al palier que conecta con el sector de amenities.
• Distribución: Al frente, con balcón corrido de medianera a medianera, ofreciendo amplitud y luminosidad.
• Amenities: Situados en el contrafrente, brindan privacidad y comodidad.
• Antigüedad: 3 años. La unidad aún no se encuentra escriturada.
Contactos:
